宴會廳MEETING ROOM1

MEETING ROOM1|奈良橿原美爵酒店
MEETING ROOM1|奈良橿原美爵酒店
MEETING ROOM1|奈良橿原美爵酒店
MEETING ROOM1|奈良橿原美爵酒店
MEETING ROOM1|奈良橿原美爵酒店
MEETING ROOM1|奈良橿原美爵酒店

收容人員・尺寸

您可以通過橫向滾動查看整個表格。

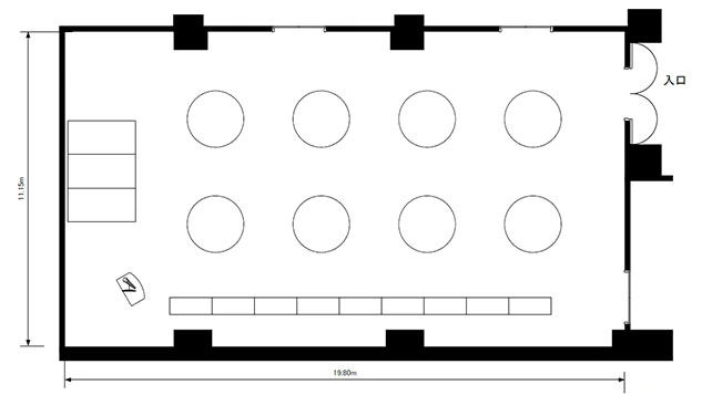
宴會廳名 面積 收容人員(最大)
劇院 立食 會議 正餐 羅字
MEETING ROOM1 221 180 120 100 100 56

平面圖、布局示例

MEETING ROOM1平面圖|奈良橿原美爵酒店
所有平面圖都可以從這裡下載
住宿預約
CLOSE
住宿預約
CHECK IN / CHECK OUT
GUESTS
大人
2
兒童
0
一個孩子的年齡
優待程式碼
搜索
優待程式碼
同時預訂機票和租車服務 帶交通的住宿預訂